深圳站
[
切换
]
登录
注册
首页
迪信家装
▼
家装案例
迪信产品
▼
迪信动态
经销商网络
▼
关于迪信
▼
English
迪信家装
设计师介绍
设计伙伴
施工队合作
迪信产品
设计理念
设备工艺
优质选材
经销商网络
经销商服务
经销商加盟
关于迪信
联系我们
加入我们
预约设计
一对一的倾听,一对一的设计
通过深度沟通,与我们有四十多年的设计经验的设计师共同描绘你想要的家
了解梁少禧
住进家装体验馆
不只是一个看两下的样板房,更是一个可入住的家
给您现场真实的家居体验,感受迪信95分标准装修
体验馆视频
家具品质的体验
涵盖高端板式家具、沙发、橱柜、衣柜、家饰以至家装材料,众多的产品种类能照顾到家居内每一个角落,为使用者提供了全面的高品质选择。
独特设计优势体验
迪信与其它众多家装设计公司的最大分别,凭借丰富经验和对自己产品的深刻认识,能为室内空间创造出更强的整体效果。
厨房
来自意大利轻奢风的简约吧台像是一道别致的风景线,展现迪信独特的设计理念:中西两厨相结合,为客户打造外观时尚、品质优异的理想现代化厨房。
卧室
优质的睡眠是对自己最好的呵护。迪信采用来自意大利迪索(Dorsol)床品,根据人体工程受力原理,调节床架+床垫,构成独属你的“私人睡眠”。
卫浴
每一个细节我们都精心把控,卫浴除了品质优异的装修搭配,整体布局格外实用,一个房子的布局决定了他的美感,实用性甚至价值体现。
餐厅
开放式的布局,消除客厅和餐厅之间的墙体阻隔,想着相互融合成为各自的一部分,使视觉范围得到充分的扩展。
衣帽间
玫瑰金优质圆钢配上特有拉丝工艺,优雅而美丽。无柜门的开放式处理和隐藏式推拉门,使得美观又实用。
私人空间布局
从家门,到客厅,到卧室
每一次设计,每一处空间,都是迪信对家的生活感官
舒适,平衡,开放式设计理念
家是用的 空间布局平衡才好用
多功能的概念用家
对空间定义的家具规划成黄金比例
家具即用具,空间与家具结合,灵活而多功能的家
家具的风格与室内的装饰风格应相互协调,不仅展现自己,还是其空间整体风格的展现。
人们从事活动和生活方式是多种多样的,利用家具的布置,合理的组织围合出不同用途的使用区域可以满足多种实用功能。
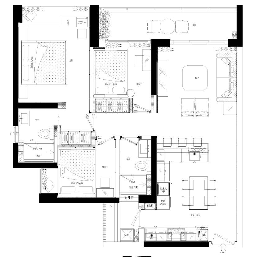
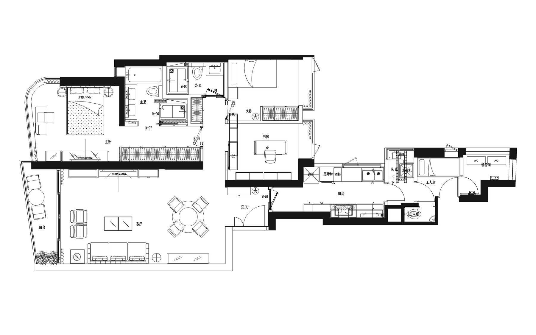
原始结构图
非迪信设计
迪信设计
更 多 案 例 展 示
平面设计
效果图
迪信私人定制把每一个家都看作具有独立个性的个体,通过设计把空间布局、家具、家饰和软装结合,把家居魅力 完全释放。从规划整体布局的家装设计, 到不改变原来布局的家具配搭,迪信都有丰富的案例经验,涵盖 120平方米到800平方米的别墅、复式及平层。2015年12月广州设计周, 迪信家具利用24小时完成了一个
130平米的五星级展示空间
,这个空间绝不是一个没有实际使用功能只是好看的花架子, 而是真的对空间进行了有效划分(包含酒窖、会客、餐厨、休息、厨卫等功能空间), 这个空间快速、可行及实用,这才是迪信设计所追求的核心。
长沙-卓越中寰
苏州-龙湖启元
西安-金地湖城大境
杭州-伍重院锦崇府
香港-贝沙湾
东莞-丰泰观山碧水
深圳-华侨城新天鹅湖
杭州-蝶园
广州-恒大御景半岛
苏州-招商沁苏禧
深圳-益田豪园居
杭州-香悦公馆
昆明-俊秀园
深圳-银湖华润蓝山
武汉-三金华都
上海-世贸佘山里
深圳-天鹅湖
上海-绿宝锦庭
大连-明秀山庄
香港-蓝天海岸
深圳-新天鹅堡
苏州-枫丹壹号
广州-星帆花园
常州-翡丽蓝湾
厦门-莲花首岸
宁波-涌宁府
深圳-熙园山院
长沙-浏阳市浏阳大道
香港-歌赋岭红枫径
苏州-星湖
查看更多
长沙-卓越中寰
苏州-龙湖启元
西安-金地湖城大境
杭州-伍重院锦崇府
香港-贝沙湾
东莞-丰泰观山碧水
深圳-华侨城新天鹅湖
杭州-蝶园
广州-恒大御景半岛
苏州-招商沁苏禧
深圳-益田豪园居
杭州-香悦公馆
昆明-俊秀园
深圳-银湖华润蓝山
武汉-三金华都
深圳-天鹅湖
上海-世贸佘山里
上海-绿宝锦庭
大连-明秀山庄
香港-蓝天海岸
深圳-新天鹅堡
苏州-枫丹壹号
广州-星帆花园
常州-翡丽蓝湾
厦门-莲花首岸
宁波-涌宁府
深圳-熙园山院
长沙-浏阳市浏阳大道
香港-歌赋岭红枫径
苏州-星湖
查看更多
常见问题
问:一般项目费用是多少?
答:迪信家装费用约6500/㎡至9000/㎡,其中迪信提供:迪信家具(含橱柜)、迪信墙体材料(背景、门、饰面板、挂板、阳角铝、水槽、淋浴盆、淋浴玻璃、镜柜等)以及非迪信提供:施工费、空调、地面材料、辅材、马桶、水龙头、厨电、窗帘、门锁。
问:迪信私人定制服务是什么?
答:由迪信家具创始人、董事长和首席设计大师梁少禧与客户一对一深度沟通,提供家装一体化设计,服务包含整体家装设计、全套施工图专业设计及深化、项目全过程贴身服务、施工队免费培训等,为您合理空间布局打造极致生活。
问:谁在帮我做家装设计?
答:迪信首席设计大师梁少禧-曾获金点设计大奖,以及迪信自己的专业设计师团队、设计顾问及其他成员均来自行业内资深设计人员,为顾客提供平面设计、深化设计、效果图演示、家具摆置、家饰、家居策划等。
问:迪信私人定制与其它家装设计有什么分别?
答:迪信拥有40多年家具自主研发及制造工厂,2亿以上生产设备,从客厅、餐厅、卧室、书房、酒窖、橱柜、卫浴、户外家具、护墙板、门墙柜、家饰等一应俱全,所用材料主要来自意大利和德国,且拥有百余项设计专利。对于家具品质、实用、耐用、美观及整体设计理念有着深刻的理解和丰富的应用经验,能够将家具本身的特性与家装设计完美结合,达至最佳效果。
问:“华丽的简约”是什么?
答:它是由迪信根据自有家具产品线、结合工业技术,为客户提供的全新私人定制家装风格,设计理念以“在豪华与简洁中取得平衡”为宗旨。
问:私人定制顾客和零售顾客所购买迪信产品价格会否不一样?
答:产品价格是一样的,私人定制与商品零售顾客所享受的服务差别主要体现在家装设计服务上。
问:我要怎样才能获得迪信私人定制服务?
答:您可通过官网在线、致电客服,或迪信全国专卖店联系,并提供全屋图纸及相关需求,迪信总部将根据您的需求提供规划方案供参考,并详细解决您的疑问。
问:我可以直接与设计师沟通吗?
答:可以的。迪信专卖店会派专人陪同,我们欢迎您到迪信公司总部参观案例实景,参观生产车间,并与总设计师梁少禧就整个设计方案进行细化沟通。
问:迪信家具私人定制服务有什么优点?
答:迪信家具前身从事室内设计及家装施工,扩展家具产品线后至今已有40多年设计经验。迪信设计基于对生活的深度体验及对家的深刻理解,所提供的私人定制服务是将对家具的专业理解与对家装的丰富经验相结合,并将资源集中,让消费者能够以更低成本获得更优质的服务。
问:我担心在施工或材料采购中存在不透明。
答:迪信只提供设计和产品,不提供施工服务,确保双方责任分明,无利益输送,但可以对施工队进行免费的施工培训。另外迪信还会尽可能提供不同材料、品牌的同类产品信息,您可比较价格与品质后再购买。迪信也建议您选择熟悉并正规的施工队。
问:那迪信如何确保施工到位?
答:所有方案我们都会提供详尽的施工图纸、效果图,并为施工方人员进行施工培训,整个家装过程中迪信总部设计师及迪信专卖店全程跟进协调,直至项目顺利完工为止。
问:如果我的房子已经装修好或者是精装修的房子,能否要求家具配搭服务?
答:可以的,家具和软装配搭也是迪信设计服务之一。
广东 东莞 世博园店
▼
经销商:黎红(店长)
电话:13688956626/0769-82900910
地址:东莞厚街家具大道名家居世博园一层A26迪信家具(九号馆)
官方微信
微信视频号
官方抖音
官方小红书
手机官网
© 版权所有:迪信家具 www.dickson.com.cn
粤ICP备06010571号
设计服务预约
姓名
电话
城市
户型
平层
复式
别墅
面积
80-150
150-250
250-350
350以上
提交申请
╳